Pour une navigation optimale, nous vous invitons à changer de navigateur

Duplex • Champerret-Berthier, Paris 17ème • 1 980 000 €
  • Pièces
  •  •  Chambres 
  • •  155 m²

Désolé, le nombre de favoris est limité à

Duplex • Champerret-Berthier, Paris 17ème
1 980 000 €
  • Pièces
  •  •  Chambres 
  • •  155 m²
Partager

Désolé, le nombre de favoris est limité à 

Duplex de luxe à vendre dans le quartier Champerret-Berthier
Duplex de luxe à vendre dans le quartier Champerret-Berthier Duplex de luxe à vendre dans le quartier Champerret-Berthier
Voir toutes les photos

Désolé, le nombre de favoris est limité à 

Fermer

Duplex
  • Pièces
  •  •  Chambres 
  • •  155 m²
1 980 000 €

Fermer

Les plus

  • 2 Terrasses
  • Balcon
  • Ascenseur
  • Belle vue
  • Gardien

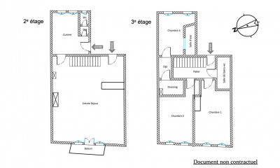
RARE ! Appartement lumineux et calme, en duplex aux 2 derniers étages avec ascenseur privatif et prestations luxueuses, climatisé et domotisé + sound system, au sein d'une résidence édifiée en 1967, sécurisée avec vigic, interphone et gardienne à demeure. Au 6ème étage : grande pièce à vivre traversante de 60 M² avec cuisine ouverte aménagée et équipée, salon avec cheminée,ouvrant sur une grande terrasse arborée, une chambre avec salle d'eau attenante, toilettes séparés. Au 7ème étage, immense suite avec une pièce entière aménagée en dressing, bureau, salle de bains avec Jacuzzi, salle d'eau et hammam, toilettes séparés avec espace buanderie, l'ensemble donnant sur une grande terrasse plein ciel. Un emplacement de parking large et une double cave (12 M2) complètent ce bien d'exception. HAVRE DE PAIX ! Proche toutes commodités. Visites faciles 7/7 (4.21 % d'honoraires TTC à la charge de l'acquéreur.) Copropriété de 100 lots - dont 89 lots habitation. (Pas de procédure en cours). Charges annuelles : 7519.24 euros.

Référence de l'annonce : 391

Obtenir le plan

Caractéristiques générales

    • Dernier étage
    • Bâtiment de 7 étages
    • Calme
    • Au 7ème étage
    • Année de construction 1967
    • 4 Pièces

Aménagement du bien

    • 1 Balcon
    • 2 Chambres
    • Chauffage gaz collectif radiateur
    • Cave
    • 2 Toilettes
    • 2 Salles d'eau
    • Salle de séjour 60 m²
    • Cheminée
    • 1 Salle de bain

Accès

    • Interphone
    • Adapté aux handicapés
    • Parking

Les diagnostics énergétiques

Diagnostic de performance énergétique (DPE)

F

Indice d'émission de gaz à effet de serre (GES)

F

Logement à consommation énergétique excessive

Voir le détail

Découvrir les environs

Le propriétaire n'a pas fourni l'adresse exacte du bien. La position mentionnée est approximative.

Obtenir l'adresse du bien
Imprimer la fiche de ce bien

À propos du prix

1 980 000 €
Honoraires TTC inclus à la charge de l’acquéreur : 4,210526% du prix du bien hors honoraires
Prix du bien hors honoraires : 1 900 000 €

Barème des honoraires

À propos de la copropriété

La copropriété inclut 100 lots pour un montant moyen annuel de la quote part du budget prévisonnel des dépenses courantes de 7 519 €

Syndicat des copropriétaires : Pas de procédure en cours

Géorisques

Les informations sur les risques auxquels ce bien est exposé sont disponibles sur le site Géorisques https://www.georisques.gouv.fr

Signaler cette annonce

Financement

  • Durée de notre prêt
    Les données dans ce simulateur sont indicatives et non contractuelles.
  • Cette simulation est fournie à titre informatif, basée sur des taux moyens du marché.
  • Demande d'Information

    Message envoyé le

    Voir le téléphone

    Digital Classifieds France procède au traitement de vos données afin de transmettre vos informations au professionnel de l'immobilier que vous souhaitez contacter pour gérer votre demande. Ces données pourront être transmises aux sociétés du Groupe AVIV auquel nous appartenons. Pour exercer vos droits sur vos données (accès, rectification, effacement, opposition, portabilité et limitation), contactez-nous à cette adresse : Digital Classifieds France - 65 Rue Ordener, 75880 Paris Cedex 18 ou en cliquant ici. Pour plus d’informations, vous pouvez également consulter notre Politique Générale de Protection des Données.

    2 Rue de Penthièvre

    75008 Paris 8ème

    L’agence I - TI vous propose 4 biens d’exception

    Informations légales de l'agence

    I - TI, au capital de 8 000 €

    Carte professionnelle n° CPI75012016000010670 délivrée par CCI Paris IDF

    Siège : 2 RUE DE PENTHIEVRE 75008 PARIS

    Garantie financière QBE International Insurance Limited pour un montant de 110 004 €

    RCS : PARIS 439364514

    Cette annonce a été ajoutée à vos favoris

    © 2026 - BellesDemeures.com