Message envoyé le
Maison / Villa
8 Pièces
•
298 m²
Arc-sur-Tille
495 000 €
Immobilier.notaires® et l'office notarial SCP Arnault MERLE et Emilie ROUCHE HAYMÉ, Notaires associés vous proposent :
Maison / villa à vendre - ARC SUR TILLE (21560)
- - - - - - - - - - -
ARC-SUR-TILLE
À seulement quelques minutes de Dijon, dans un environnement calme et préservé, découvrez une propriété pleine de caractère et d'histoire : une ancienne pharmacie du village aujourd'hui transformée en maison familiale de charme.
Dès l'étage, vous profitez d'un espace de vie chaleureux et lumineux avec de beaux volumes : vaste séjour, salon avec cheminée ouvrant sur la terrasse et le jardin, cuisine aménagée, 3 chambres dont une avec point d'eau, salle de bains avec douche et WC indépendant.
Une grande pièce de plus de 30 m² offre un potentiel immédiat pour créer deux chambres supplémentaires, idéal pour une famille nombreuse.
Les greniers déjà isolés permettent également d'envisager de nouveaux aménagements selon vos besoins.
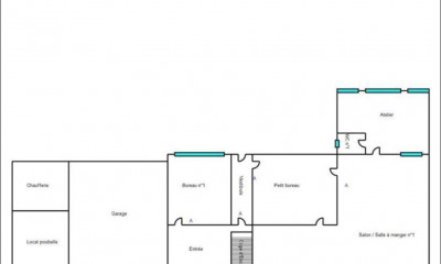
En rez-de-chaussée, un vaste espace indépendant de plus de 150 m² complète l'ensemble. Aujourd'hui utilisé en bureau et bibliothèque, il laisse libre cours à votre imagination : espace de travail, logement indépendant, atelier ou projet familial évolutif.
À l'extérieur, vous bénéficiez d'un terrain clos de 1 221 m², sans vis-à-vis direct, avec jardin piscinable et accès arrière pratique pour tous vos aménagements.
Garage spacieux (2 à 3 véhicules) avec borne de recharge électrique et cave voûtée viennent compléter ce bien.
Une maison unique, idéale pour ceux qui recherchent de l'espace, du cachet et un lieu de vie capable d'évoluer dans le temps.
Prix : 495 000 € honoraires inclus - Classe énergie : D - Classe climat : D - Montant estimé des dépenses annuelles d'énergie pour un usage standard : 4800 à 6560 € (base 2021).
Réf : 024 - 207
- - - - - - - - - - -
Visites : Pour toute visite veuillez prendre contact avec l'étude
Contact :
- - - - - - - - - - -
Annonce de l'étude SCP Arnault MERLE et Emilie ROUCHE HAYMÉ, Notaires associés - Notaires à Pontailler-sur-Saône - N° SIRET : 48343541800015
- - - - - - - - - - -
Immobilier.notaires® : Evaluer, acheter & vendre avec les notaires partout en France. 12 000 notaires, experts et négociateurs vous accompagnent dans vos projets immobiliers en toute confiance.